› Chamonix-Mont-Blanc › Chalet Fortuna, a jewel in central Chamonix
Chalet Fortuna, a jewel in central Chamonix
Chamonix-Mont-Blanc - Chalet
Availability and prices
Accommodation
Description
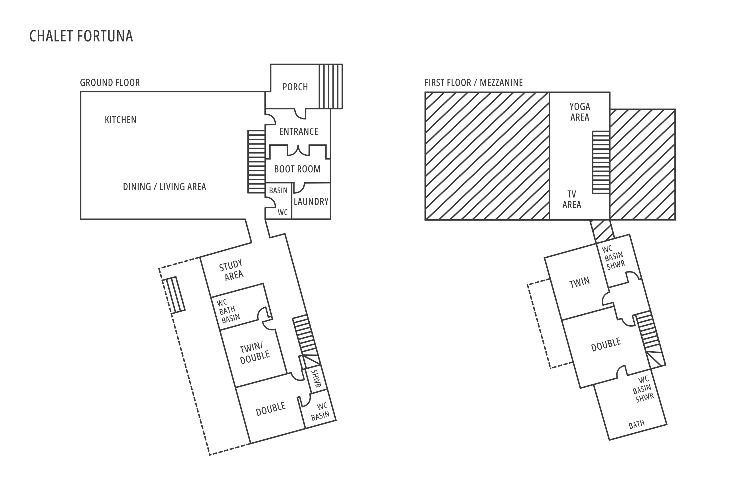
Chalet Fortuna is a spacious and beautifully designed chalet in a superb location, offering panoramic views of Mont Blanc and Les Aiguilles, stretching across the valley to Brévent. Newly built, it blends contemporary alpine style with natural materials—featuring warm timbers, stone bathroom floors, and a striking interior palette of crisp white and bold black accents.
Just a short, flat walk from the centre of Chamonix, Chalet Fortuna is also conveniently located near the La Frasse ski bus stop. For larger groups, it can be combined with nearby Chalet Valhalla.
The ground floor features a bright, open-plan living space with floor-to-ceiling windows, dining and sitting areas, and a sleek, well-equipped kitchen with a large island and minimalist cabinetry. Carefully selected furnishings give the space an elegant, subtly Italian feel.
A standout feature is the mezzanine lounge—a cosy hideaway with a projector TV, sofa, and beanbags, perfect for film nights or a quiet escape.
There’s also a dedicated study area with inspiring mountain views, making it an ideal spot for reading or remote work.
Bathrooms are beautifully finished with modern fittings and thoughtful touches. Bedrooms feature blackout curtains and Collineige’s famously comfortable beds, complete with soft pillows and Egyptian cotton linen—regularly praised by our guests.
Outside, a large deck and garden provide the perfect setting to relax with a summer barbecue or après-ski drinks, all while taking in the stunning mountain backdrop.
Please note that due to the steep nature of the stairs, this property is not suitable for young children (under 4 year olds).
Please also note that due to our licensing and insurance arrangements, only our trained staff may work at the chalet.
Just a short, flat walk from the centre of Chamonix, Chalet Fortuna is also conveniently located near the La Frasse ski bus stop. For larger groups, it can be combined with nearby Chalet Valhalla.
The ground floor features a bright, open-plan living space with floor-to-ceiling windows, dining and sitting areas, and a sleek, well-equipped kitchen with a large island and minimalist cabinetry. Carefully selected furnishings give the space an elegant, subtly Italian feel.
A standout feature is the mezzanine lounge—a cosy hideaway with a projector TV, sofa, and beanbags, perfect for film nights or a quiet escape.
There’s also a dedicated study area with inspiring mountain views, making it an ideal spot for reading or remote work.
Bathrooms are beautifully finished with modern fittings and thoughtful touches. Bedrooms feature blackout curtains and Collineige’s famously comfortable beds, complete with soft pillows and Egyptian cotton linen—regularly praised by our guests.
Outside, a large deck and garden provide the perfect setting to relax with a summer barbecue or après-ski drinks, all while taking in the stunning mountain backdrop.
Please note that due to the steep nature of the stairs, this property is not suitable for young children (under 4 year olds).
Please also note that due to our licensing and insurance arrangements, only our trained staff may work at the chalet.
Reviews
10
4 reviews
All
English
All reviews have been checked and authenticated. Once you have received a 'rate your stay' email based on your confirmed reservation, you can leave an accommodation review.
- 5/5Service
- 5/5Cleanliness
- 5/5Accommodation
- 5/5Location
- 5/5Value for money
|
Trip Organizer
Phil (United States)
| |||
|
Strongest thing about working with Collineige is the excellent communication, starting with Colleen/Anne-Marie/Marie all the way down through Isabelle and Kate you always feel like you are working with a personal team that is working with you.
Strongest thing about working with Collineige is the excellent communication, starting with Colleen/Anne-Marie/Marie all the way down through Isabelle and Kate you always feel like you are working with a personal team that is working with you.
|
|||
|
Lighting in Kitchen could be improved at bit, perhaps put some track spots high up on the wooden beam directly above kitchen area.
Lighting in Kitchen could be improved at bit, perhaps put some track spots high up on the wooden beam directly above kitchen area.
|
|||
|
Thank you for your review 0
Was this useful? 0
3 months
| |||
|
Thanks for staying with us & we hope to see you again soon.
Thanks for staying with us & we hope to see you again soon.
|
|
||
|
A beautiful and memorable stay!
Didem
| |||
|
Waking up to such a beautiful and clean chalet every morning and having that incredible view on the mountains was definitely a highlight of our trip. Some evenings we preferred to stay in just to make the most of it!
Waking up to such a beautiful and clean chalet every morning and having that incredible view on the mountains was definitely a highlight of our trip. Some evenings we preferred to stay in just to make the most of it!
|
|||
|
Some of the electronic equipment (hoover robot and speakers) were a bit dodgy and perhaps in need of some care, but that is only a very small point.
I'd recommend renting a car when coming here. While buses run very closeby, they can sometimes be asee more
Some of the electronic equipment (hoover robot and speakers) were a bit dodgy and perhaps in need of some care, but that is only a very small point.
I'd recommend renting a car when coming here. While buses run very closeby, they can sometimes be a bit unreliable. Walking into town takes about 15-20 minutes. |
|||
|
Thank you for your review 0
Was this useful? 0
3 months
| |||
|
Thanks for staying with us and your lovely comments. Sorry the hoover & speakers were tricky - we will check them as they are very new.
Thanks for staying with us and your lovely comments. Sorry the hoover & speakers were tricky - we will check them as they are very new.
|
|
||
|
Great location
Bashyr
| |||
|
Close to the center and Beautiful property
Close to the center and Beautiful property
|
|||
|
Thank you for your review 0
Was this useful? 0
9 months
|
|
||
|
Absolutely incredible stay
A guest
| |||
|
The place was spotless, beautifully decorated, and had everything I needed for a comfortable and relaxing visit. The views of Mont Blanc were breathtaking, and waking up to that scenery every morning felt like a dream. The host was exceptionally welcsee more
The place was spotless, beautifully decorated, and had everything I needed for a comfortable and relaxing visit. The views of Mont Blanc were breathtaking, and waking up to that scenery every morning felt like a dream. The host was exceptionally welcoming and responsive, providing clear instructions and helpful local tips that made my trip even more enjoyable. Check-in was smooth, and every little detail was clearly thought out to make guests feel at home. The location is perfect — just a short walk to the town center, ski lifts, restaurants, and trails. Whether you’re visiting for skiing, hiking,just soaking in the beauty of the Alps, this is the ideal base. I would absolutely stay here again and highly recommend it to anyone visiting Chamonix. Truly a five-star experience!
|
|||
|
One small note: let the customer know about the house alarm and how to turn it off before they arrive, as it’s very loud.
One small note: let the customer know about the house alarm and how to turn it off before they arrive, as it’s very loud.
|
|||
|
Thank you for your review 0
Was this useful? 0
11 months
|
|
||
Show more
Show less
Map and distances
-
Distances
Bus station - La Frasse
180 m
Restaurant
600 m
Town centre
1 km
Shops
1.2 km
Distribution of bedrooms
1 Double bed
1 Double bed
2 Single beds
2 Single beds
Bathroom distribution
4 bathrooms and 1 toilet/half bathroom
Special features
220 m²
Mountain views
Terrace
1 km to city
Kitchen (induction)
Refrigerator
Microwave
Oven
Freezer
Dishes/Cutlery
Kitchen utensils
Coffee machine
Toaster
Kettle
Views
Mountain
General
2 TVs
Garden
Garden furniture
Terrace
Washing machine
Dryer
Barbecue
Iron
Internet
Internet
Wi-Fi
Hair dryer
220 m² Property
Heat pump
Open-air parking the same building
Open-air parking the same building
2 spaces
Ski storage
Parties/events not allowed
Luggage drop off allowed
Smoke detector
Carbon monoxide detector
Fire extinguisher
Books
Board games/puzzles
Smart tv
Mandatory or included services
Bed linen: Included
Bootwarmers: Depending on season
Bootwarmers
Available:
From 1/1 To 31/5
From 1/10 To 31/12
Price: Included
From 1/1 To 31/5
From 1/10 To 31/12
Price: Included
Chalet Host to Help with Local Arrangements : Included
Final Cleaning: Included
Internet Access: Included
Internet Access
Please refer to the QR code in the welcome book.
Meet and Greet with our Resort Host: Included
Open-air parking: Included
Pre-holiday Concierge Service to Help Plan your Stay: Included
Toiletries by L'Occitane: Included
Toiletries by L'Occitane
Shampoo, conditioner, shower gel, liquid hand soap, body lotion
Towels: Included
Optional services
Baby high chair: Included
Cot/Crib: Included
Heating: Included
Taxes
Tourist tax: Included in the total price
Tax calculationPlease add the dates of the stay to display the tax conditions
Your schedule
Check-in from 17:00 to 23:45 Every day
Check-outBefore 10:00
Security Deposit (refundable)
Amount: € 1,500.00 / booking
Payment method: Credit Card Hold
Payment on arrival.
Comments
- This accommodation does not accept groups of young people (Up to 21 years)
- No smoking
- No pets allowed
- No smoking
- No pets allowed
Similar properties
-
Chez Florence is brilliantly located to enjoy all that Chamonix has to offer, in a peaceful road, yet only a short stroll from the centre. Beautifully furnished with warm timbers and an alpine feel, this comfortable apartment has wonderful views of Mont Blanc. It was refurbished during 2019 and is the perfect accommodation for a family or a group of friends.
Sit cosily by the fire or over a drink outside, enjoying the Mont Blanc views from the sunny terrace. You can walk to anywhere in Chamonix from here but when you want to venture further afield there is a parking space right below the apartment for your car.
The sitting room and well equipped kitchen are on the first floor, with doors leading to the terrace. On this floor there is also a cloakroom at the top of the stairs.. On the ground floor are two double bedrooms, a bathroom with a bath, basin and shower, separate loo and also a shower room. Stairs from the sitting room lead to a further double bedroom and with a large bath and a basin. On the lower ground floor you will find a simpler twin bedroom, good for kids, and a laundry room.
Please note that due to our licensing and insurance arrangements only our trained staff may work at the chalet.
'Lovely stay with family, we all enjoyed the space and location and would recommend.
The service offered by Collineige was a real bonus as they helped organise ski instructors in advance for us and were very knowledgeable when we spoke.' JO Mar 2024
'Cosy chalet, walking distance from centre but in quiet area (feels like you are in a small village). Great views of mountains. Bus station to some of the ski areas at bottom of road (we only needed this once as we had our own car).' JO Feb 20204 reviews -
Nestled in the peaceful village of Montroc, Guapa is a beautiful mountain chalet, offering an incredible view and tranquility; a perfect escape in Chamonix! Ideally placed for access to the ski lifts of Le Tour and Les Grands Montets, it’s a brilliant base for a family or group of friends. In summer, numerous hiking trails start right from the door, including routes to the Aiguilles Rouges, Vallorcine and the Petits Balcons.
The chalet is just a 1 minute walk from the train station and bus stop, offering easy access to Argentière (with its shops, restaurants and bars) or Vallorcine for skiing. For winter or summer adventures, Chalet Guapa is ideally located to enjoy the best of the region.
Built with a deep respect for local traditions, the chalet features a beautiful blend of wood and stone, creating a warm, timeless atmosphere. The spacious open-plan kitchen is well-equipped, and the living/dining area offers a vast mountain panorama view, a cozy fireplace and French doors leading out onto a south-facing terrace, complete with a jacuzzi—perfect for relaxing after a day in the mountains. There’s also a convenient home office area.
The two ground-floor bedrooms open directly onto the terrace, allowing you to enjoy the stunning mountain and valley views. Upstairs, a large mezzanine bedroom with four single beds and a TV corner offers ample space for relaxation. The chalet has two separate bathrooms—one with a bath and the other with a shower.4 reviews
Special offers
*|
Discount of 28% for bookings of more than 13 nights
From 12/04/2026 to 26/06/2026
|
28%
discount
|
|
Discount of 25% for bookings of more than 6 nights
From 12/04/2026 to 26/06/2026
|
25%
discount
|
|
Discount of 15% for bookings of more than 5 nights
From 12/04/2026 to 26/06/2026
|
15%
discount
|
|
Discount of 25% for bookings of more than 6 nights
From 27/06/2026 to 31/07/2026
|
25%
discount
|
Booking conditions
From booking date until 57 days before check-in, cancelling the booking will have a penalty of 100% of the prepayment
Cancellation policies
In case of cancellation the following charges will apply
From the booking date until 57 days before check-in
100% of the total prepayment amount
From 56 days before check-in until 36 days before check-in
45% of the total rent
From 35 days before check-in until 22 days before check-in
60% of the total rent
From 21 days before check-in until 15 days before check-in
80% of the total rent
From 14 days before until check-in
100% of the total rent
No-show
100% of the total rent
Other relevant information
Accommodation Registration Number
74056002379G6
