Search
- Grid
-
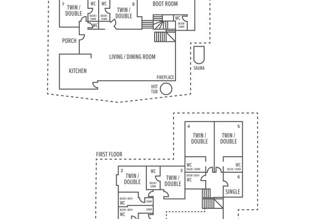
Valhalla is a fabulous luxury 5* chalet, very central, with a hot tub and sauna in the garden. Open and light, it has...
- 330 m²
- Hot tub
- Sauna
- Mountain views
-
Chalet Les Tissourds is a wonderful Maison de Pays that has been beautifully restored and refurbished, a luxury...
- 200 m²
- Hot tub
- Terrace
- Balcony
Showing 1 - 12 of 19 accommodations
12
